FacebookPixel Premium Development Opportunity in Loulé with Strong Investment Returns

Premium Development Opportunity in Loulé with Strong Investment Returns

Loulé, Loulé (São Clemente)

Premium Development Opportunity in Loulé with Strong Investment Returns
Back\Premium Development Opportunity in Loulé with Strong Investment Returns - Loulé, Loulé (São Clemente)
Send property to a friend
Know more »
captcha
Required fields *
Opportunity
Seguir imóvel Receba um alerta quando existir uma Baixa de Preço
Name
Enter the code from the image
captcha
Code
Premium Development Opportunity in Loulé with Strong Investment Returns 800 000 € Ref: 3007
1022 m²
1815 m²
657 m²
Discover a truly distinctive investment opportunity in the heart of Loulé, one of the Algarve’s most dynamic and sought-after locations, increasingly popular among both national and international investors. This project stands out for its strong appreciation potential and strategic central location, surrounded by a vibrant mix of commerce, services, cultural events, and quality lifestyle amenities.
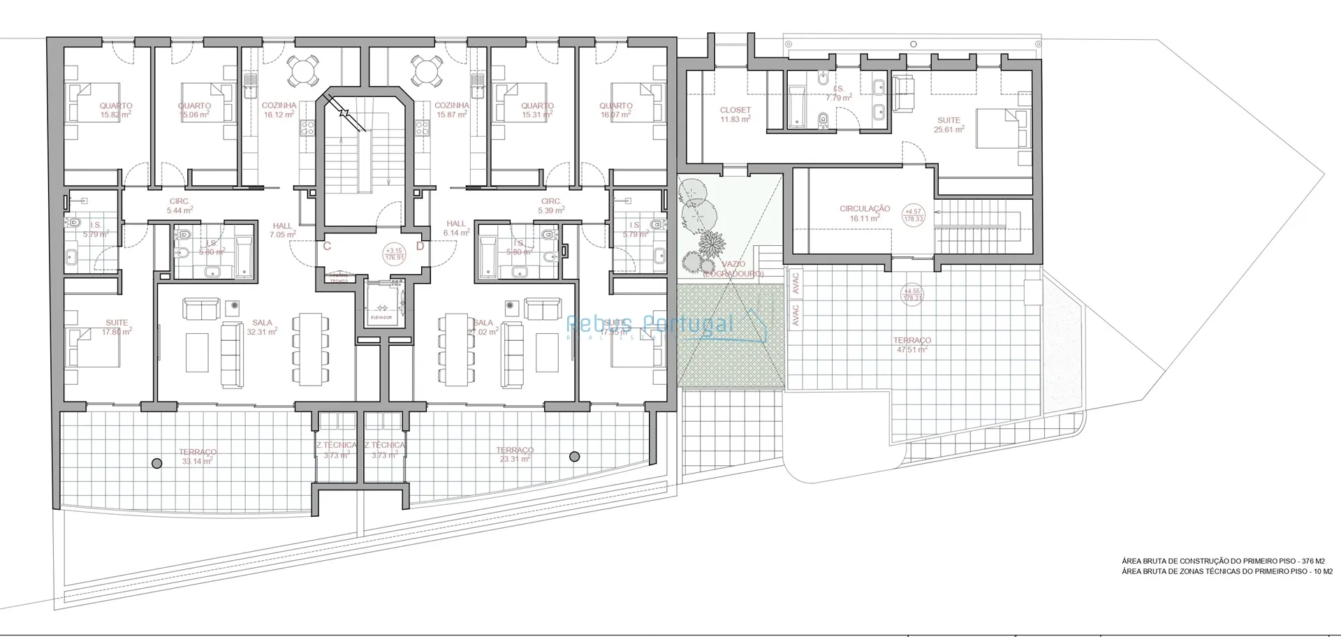
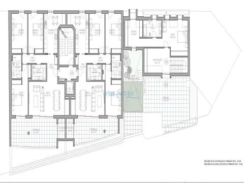
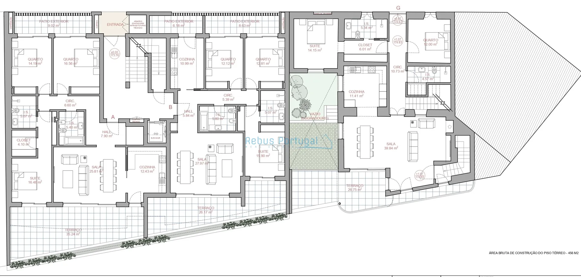
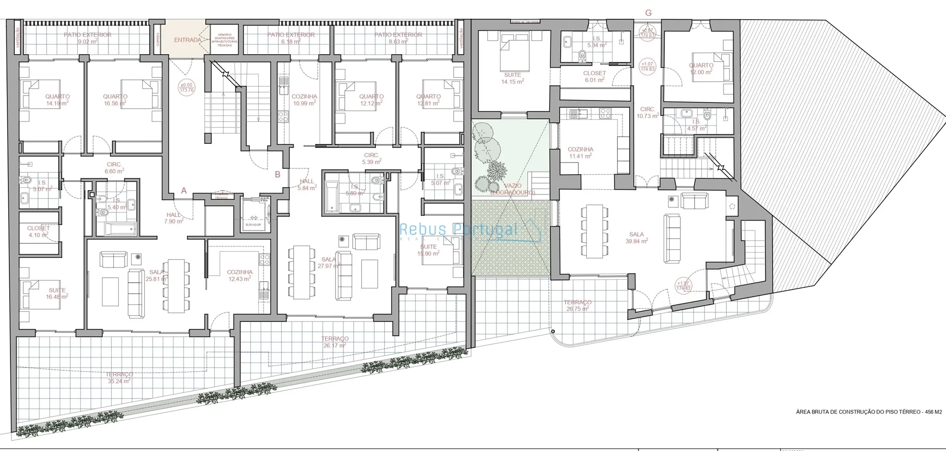
The property consists of a plot with an approved project for the construction of a contemporary residential building comprising six 3-bedroom apartments, distributed across basement, ground floor, first and second floors, along with a renovation project for an independent three-bedroom villa. This combination offers added flexibility and appeal for various investment strategies, from private residence to rental income.
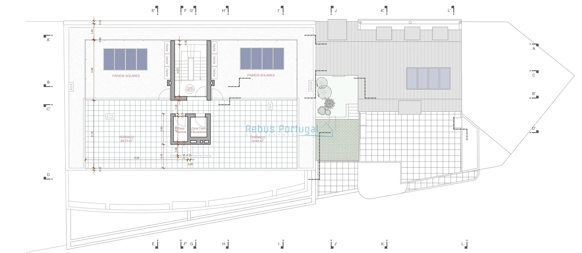
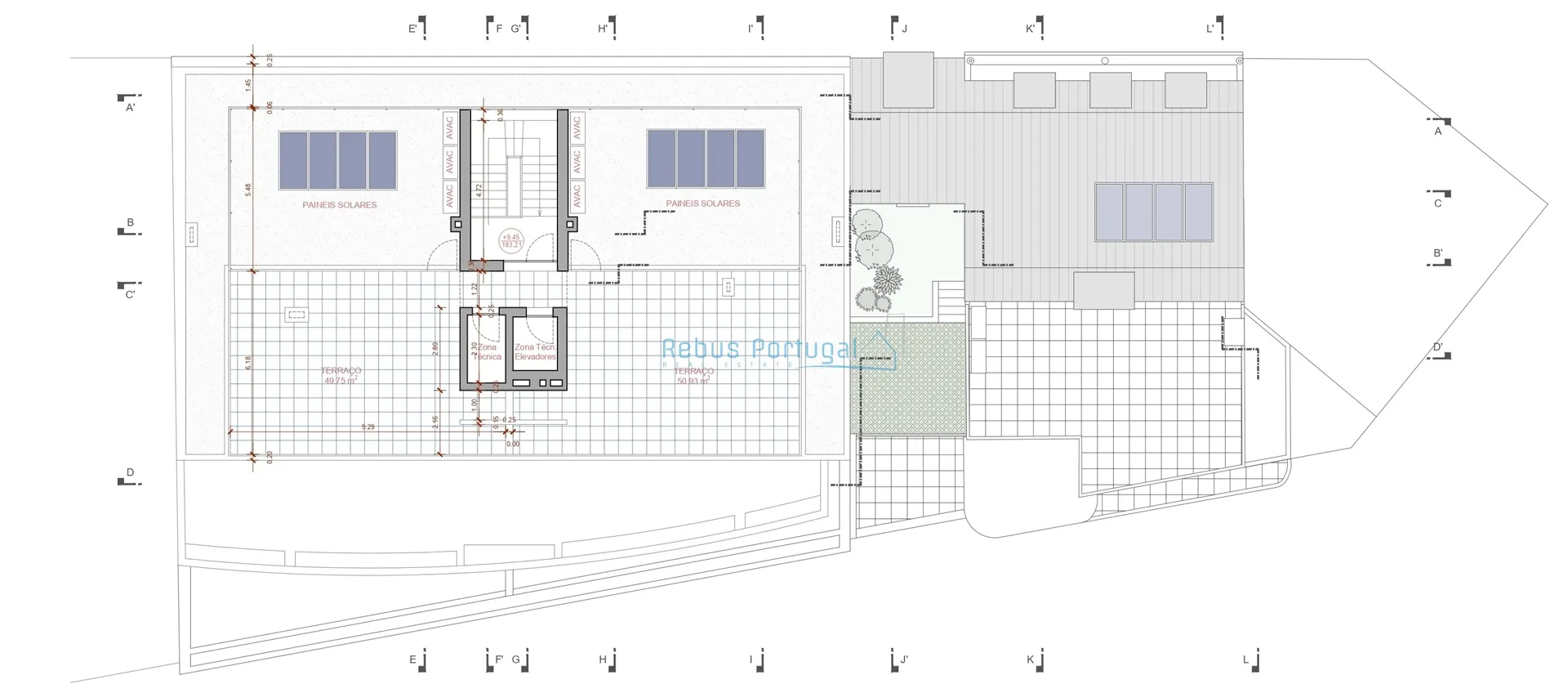
The development has been carefully designed to maximize comfort, functionality, and long-term value. The apartments benefit from generous indoor and outdoor areas, including approximately 350 sqm of terraces and a rooftop featuring two spacious areas with open city views. The basement, with 561 sqm, includes covered parking, storage units, and technical areas, ensuring convenience and efficiency.
The villa, with an independent entrance, includes a patio, outdoor space, and private parking, offering a fully autonomous and differentiated living solution within the same development.
All construction licenses, fees, and municipal compensations have already been paid, allowing immediate construction — a key advantage for developers seeking efficiency and reduced risk.
With its central location in Loulé, excellent accessibility, generous outdoor spaces, and private parking, this project represents a solid and highly profitable investment in a continuously appreciating market.
Energy certification in progress.
Property Type Building
Typology 0 Bedrooms
Objective Sell
Condition Projected
Price 800 000 €
Year of Construction N/A
Country Portugal
District Faro
County Loulé
Parish Loulé (São Clemente)
Zone N/A
Zélia Palma
Zélia Palma
Chamada para a rede móvel nacional
Pretendo ser contactado
Date
Hora
Name
Contact
Message
captcha
Code
General Features
General
  •  
Rooms
Rooms Area Floor Walls Ceilings Comments
 
Surroundings
  •  
Facilities
  •  
Domotic System (Home automation)
  •  
Renewable Energy
  •  
Estamos disponíveis para o ajudar Pretendo ser contactado
Date
Hora
Name
Contact
Message
captcha
Code
O que é a pesquisa responsável
Esta pesquisa permite obter resultados mais ajustados à sua disponibilidade financeira.